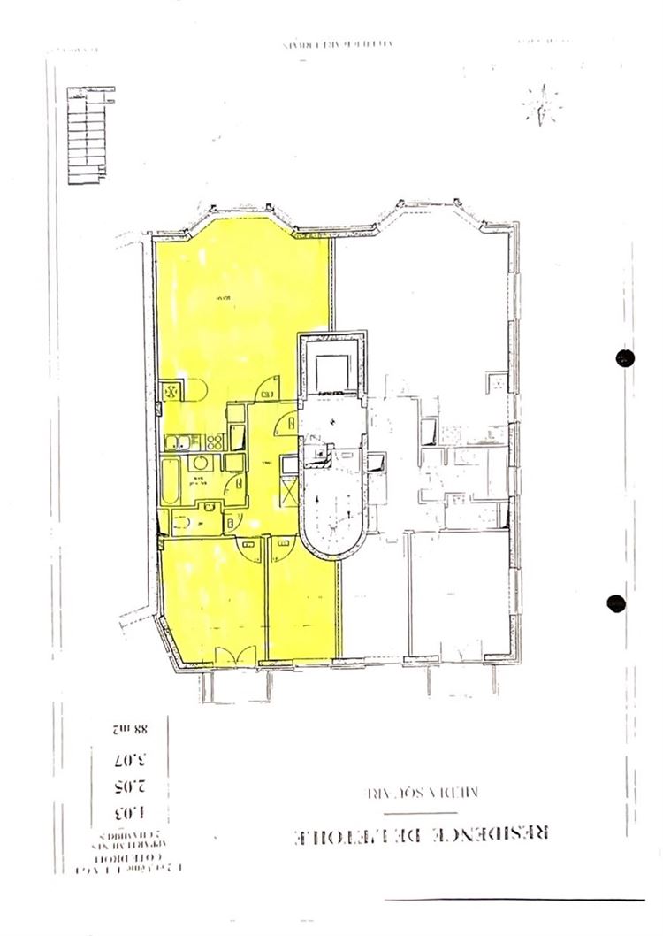
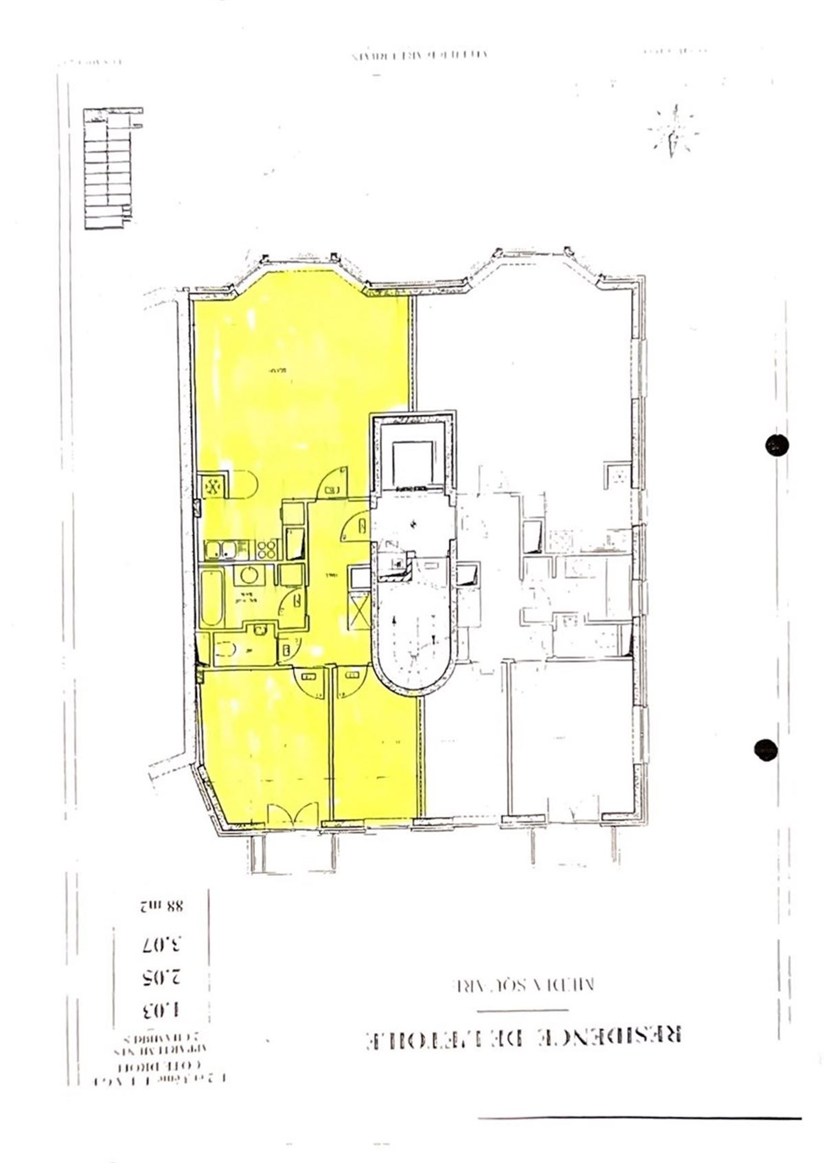
VISITES SUSPENDUES - En attente de signature du compromis de vente - Place des Carabiniers 18 à 1030 Bruxelles – Situé sur une petite place calme, à proximité immédiate des transports en commun (tram, bus, pré-métro), des commerces, restaurants et autres commodités, ce bel appartement de ± 86 m² (selon PEB) se trouve au 1er étage d’un immeuble construit en 2002 par les Entreprises Delens (Architecte : Atelier d'art urbain). Le bien est libre d’occupation. Il se compose d’un agréable living ensoleillé de ± 34 m² avec cuisine américaine entièrement équipée (frigo, four, lave-vaisselle, taques électriques…), de deux chambres à l’arrière (± 14 m² et ± 9 m²), d’une grande salle de bains avec espace buanderie, ainsi que d’un WC séparé. L’appartement bénéficie de nombreux atouts : chaudière commune au gaz neuve (2024), châssis en bois double vitrage, parquet, installation électrique conforme, grande cave privative en sous-sol (± 1,50 m x 3 m) et balcon attenant à la chambre principale (± 2,5 m²). PEB : D – Charges communes : +/-200€/mois (calcul basé sur 2022/2023/2024); eau & chauffage : +/- 200€/mois (calcul basé sur 2023/2024).Vous apprécierez son environnement verdoyant et paisible, sa belle luminosité ainsi que sa localisation idéale. Un emplacement de parking en sous-sol est obligatoire (25.000 €). Visites uniquement sur rendez-vous au 0475/78.77.99